casa indipendente con oltre 1000 mq di giardino

Benvenuti in Studio Aurora !

Bomporto – V072L

Se hai sempre desiderato vivere in una casa completamente indipendente, circondata dal verde e con spazi che sembrano non finire mai, questa proposta può fare al caso tuo.
Perfetta per chi sogna ampi ambienti, libertà totale e magari anche un piccolo progetto agricolo, grazie al grande deposito, ai bassi comodi e al terreno a disposizione.

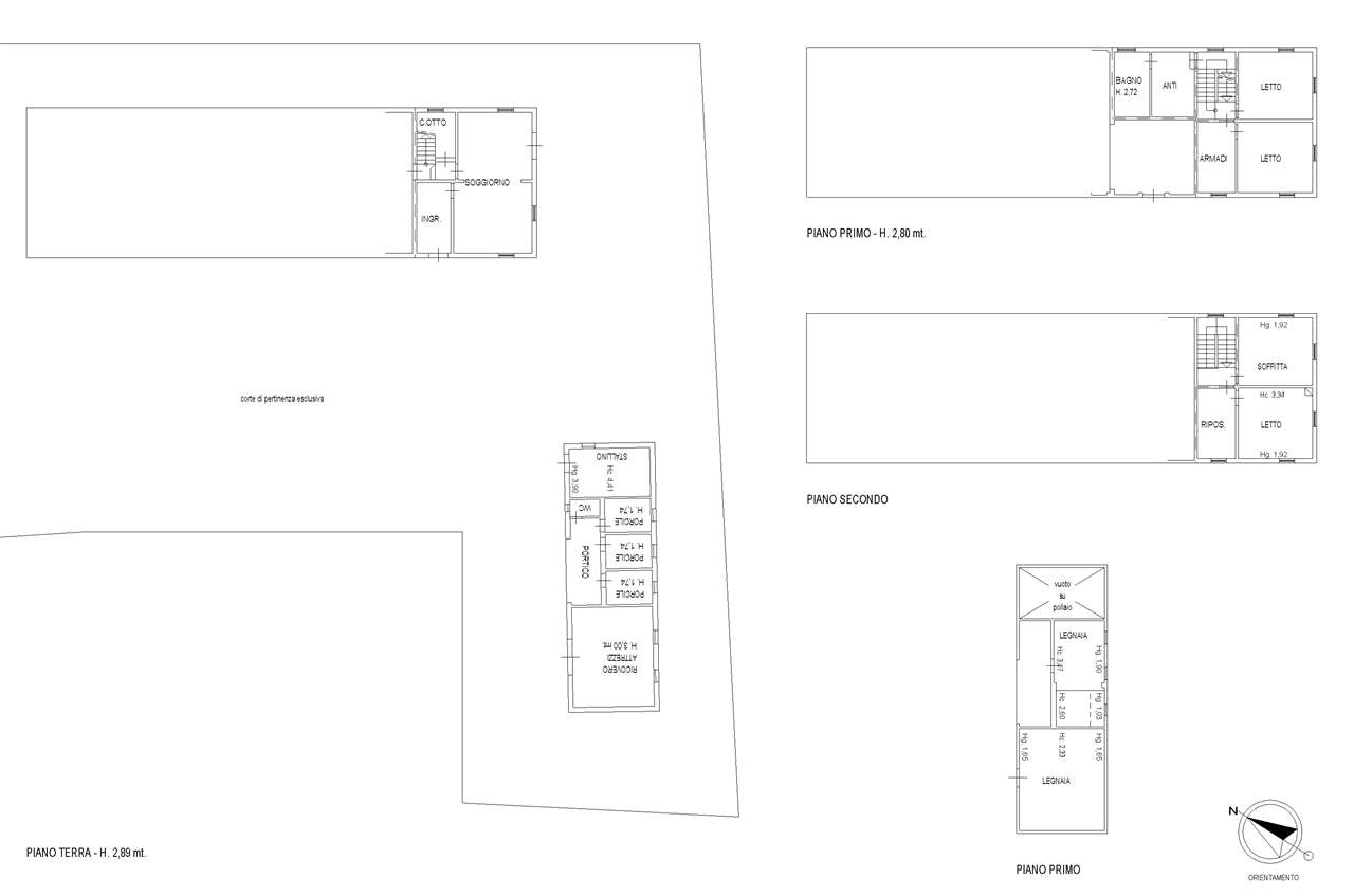
L’abitazione si sviluppa su tre livelli. Al piano terra troviamo un portico spazioso, ingresso, cucina e salotto open space, oltre a un wc nel sottoscala.
Salendo al primo piano troviamo due camere matrimoniali molto ampie, una stanza armadi, antibagno e bagno.
All’ultimo piano altre due camere matrimoniali e un ripostiglio.

Esternamente completano la proprietà: un ex deposito/stalla con doppio volume, un ricovero attrezzi, un basso comodo composto da più locali, un giardino di oltre 1000 mq.

Cinque motivi per sceglierla:

1 - Totale indipendenza: una vera casa singola, senza vincoli condominiali.
2 - Spazi infiniti: interni generosi, cinque camere e locali di servizio.
3 - Grande giardino: oltre 1000 mq per coltivare, giocare, rilassarsi.
4 - Tanto potenziale: perfetta anche per un'attività agricola o per creare un contesto bifamiliare.
5 - Contesto tranquillo: zona verde e silenziosa, a soli 7 minuti dal centro di Bomporto e San Prospero.

Vendi e riacquista con facilità nelle località di Bastiglia, Sorbara, Bomporto, San Prospero, Ravarino ed altre località limitrofe.
La nostra specializzazione è accompagnarti dalla vendita del tuo attuale immobile all'acquisto della tua prossima casa.
Scopri le nostre offerte sul nostro sito www.studioaurora.net

N.B. La posizione indicata nell’annuncio potrebbe non corrispondere.

Caratteristiche

  • Rif. Immobile: V072L

  • Prezzo: 170.000 €

  • Metratura: 426 mq

  • Camere: 4

  • Bagni: 2

  • Garage: Non presente

  • Posti auto: 0

  • Piano: 0

  • Classe energetica: VA

  • Spese condominiali: 1€ /anno

Accessori
  • Aria Condizionata

  • Camino

  • Doppio Ingresso

  • Ingresso Indipendente

  • Passaggio Automobilistico

  • Passaggio Pedonale

Floor Plan
Floor Plan
Contattaci per questo immobile via mail
 Dichiaro di aver preso visione dell'informativa ai sensi del Decreto Legislativo 196/2003 e del Regolamento (UE) 2016/679 del Parlamento Europeo e del Consiglio del 27 Aprile 2016 (GDPR).
 Autorizzo altresì STUDIO AURORA SRL ed i suoi partner al trattamento dei miei dati personali per attività promozionali

Condividi

Preferiti